Menu
an architectural office
×
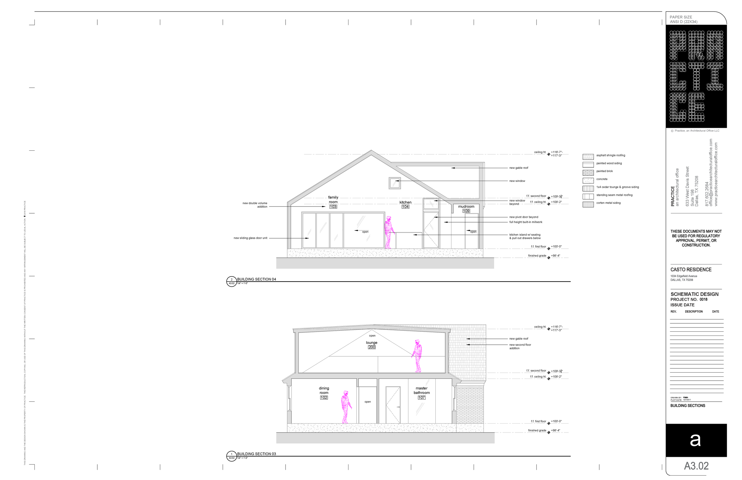
winnetka house in Dallas, Texas